インフォメーション
大門新築戸建現地販売会開催中!
青梅市大門にて
新築戸建の現地販売会を開催中です!
交通:青梅線 河辺駅バス12分 「第三小学校前」バス停徒歩3分
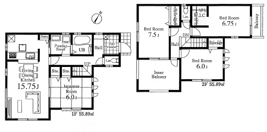
間取り:4LDK
土地面積:142.56㎡
建物面積:111.78㎡
所在地:青梅市大門2丁目201-2
現物を見ないで購入する不安はとてもありましたが、問い合わせから迅速、丁寧で納品までとても安心でした。商品も新品かと思うようなキレイさで精度もよくとても満足です。私は手首16cm、幅5cmですが32mmがしっくりきました。小径が気になる男性にもおすすめです。スーパーコピーに記載してある通りお客様目線で対応してくれるのでまた機会があればお世話になりたいと思います。ありがとうございました。
皆様のご来場
お待ちしております♥
秋の住み替え応援フェア開催中![]()



































